Vorbereitungen

Das Flamberghuis bietet als Gruppenhaus soviel wie nötig, aber wenig Überflüssiges. Die folgende Liste gibt einige Hinweise für die Vorbereitungen.

 

Folgendes ist vorhanden

Küche:

  • Gastro-Kühlschrank (250l)

  • Tiefkühler (100l)

  • Doppelherd mit 8 Platten

  • 2 Backofen und Bleche

  • Mixer, Küchenwaage

  • Bratpfannen, Töpfe, Geschirr

  • Serviergeschirr

  • Abtrockentücher Geschirr

  • Handspülmittel, Putzmittel

  • 2 Nespresso-Maschinen (ohne Kapseln)

  • Gastro-Geschirrspüler


Schlafräume:

  • Kopfkissen mit Bezügen

  • Wolldecken

Verschiedenes:

  • Aussengrill

  • Fahnenmast

  • WLAN

  • 8 Festbankgarnituren

Bitte selber mitnehmen

  • Schlafsack oder Leintücher

  • Hausschuhe

  • Persönliche Utensilien

  • WC-Papier

  • Holzkohle für Aussengrill

  • Hygienematerial

  • Nespresso-Kapseln

  • Evtl. Fahne für Mast


Fondue/Kerzen

  • Fondue NUR mit Brennpaste in Alu-Schalen beheizen. Keinesfalls flüssige Brennpaste mitbringen/verwenden!
    4 Rechaud & Caquelons sind vorhanden.

  • Kerzen sind im ganzen Haus verbotem


Bitte nicht mitnehmen

  • Haustiere sind grundsätzlich nicht erlaubt (Ausnahmen sind für Therapie/Blinden-Hunde nach Absprache möglich)

  • Feuerwerkskörper sind verboten

  • Flüssige Brennpaste

  • Wachskerzen

Anreise

Das Flamberghuis steht auf dem Stoos (SZ). Da das Dorf autofrei ist, reist man öffentlich an. Der Zugang mit einem Privatfahrzeug ist teilweise möglich.

 

Mit dem ÖV…

Der Stoos liegt in der Zentralschweiz bei Schwyz. Von Schwyz (SZ) fährt man mit dem Bus Richtung Muotatal zur Stoosbahn Talstation, von wo aus der Stoos mit einer spektakulären Standseilbahn erreichbar ist. Alternativ gelangt man auch von Brunnen aus mit dem Bus nach Morschach, wo eine sehr kleine Luftseilbahn auf den Stoos führt. Im Frühling und Herbst unbedingt die Revisions- daten der Bahnen prüfen. Auf den Stoosbahnen ist das Generalabonnement (GA) gültig.

Gruppentarife oder den Kauf von Tageskarten prüfen (Stoosbahnen sind im Skipass inbegriffen).

… und einem Spaziergang zum Haus

Von den Zubringerbahnen aus gelangt man in rund 20-30 Minuten zu Fuss zum Flamberghuis. Für die Abkürzung über die Wiese genau an der angegebenen Stelle bitte hintereinander gehen. Je nach Wetterverhältnissen sind gute Schuhe zu empfehlen (die sind eigentlich immer zu empfehlen).

Mit dem Auto

Der Stoos ist autofrei. Die Zufahrt zum Haus ist im Sommer für 1–2 PWs mit Spezialbewilligung und auf eigene Verantwortung möglich. Sie dürfen nicht ins Dorf fahren (Video-Überwachung durch die Gemeinde)!

Die Strasse ist steil und eng. Beschränken Sie die Fahrten auf das absolut Notwendige. Nutzen Sie im Winter die Dienstleistungen der Taxi- und Transportzentrale. Bei Missachtung der Vorschriften kann die Bewilligung entzogen werden.

Exemplarische Spezialbewilligung

Mit dem Taxi

Taxi- und Transportzentrale, Tel. 041 818 08 88 oder taxi.transporte@stoos.ch, bietet Personen- und Gütertransporte an (ab 50 CHF je nach Fahrzeug), im Winter bis 200m vors Haus.

Wichtig:
Es empfiehlt sich, Transporte mindestens 24h vorher anzumelden.

Hausübernahme

Das Flamberghuis wird von unseren geschätzten Nachbarn auf dem Stoos betreut. Diese sorgen dafür, dass das Haus in bestem Zustand übergeben wird.

 

Ankunftszeit

Als Ankunftszeit gilt generell 14.00 Uhr. Falls nicht bereits vorgängig eine andere Ankunftszeit vereinbart wurde, informieren Sie bitte bei einer späteren Ankunft unsere Hauswartin per SMS. Sie wird dann zur vereinbarten Zeit vorbei kommen. Ansonsten ist das Haus bereits offen.

Early Check-In oder late Check-Out sind nur möglich, wenn dies im Vertrag aufgeführt ist oder mit der Vermietung besprochen wurde.

Schutz der Landschaft

Die Wiesen rund um das Flamberghuis werden landwirtschaftlich genutzt. Bitte diese nicht mit Unrat belasten. Unrat tötet Tiere!


 

Hauswartinnen

ab Juni:
Theres Bürgler
Tel: +41 (0)79 678 61 10

ab Oktober:
Monika Schmid
Tel: +41 (0)41 811 67 26

Heizung

Das Haus wird mit Holz geheizt. Der Kachelofen benötigt mehrere Stunden, bis er warm ist und gibt dafür über längere Zeit Wärme ab. Auf Anfrage ist auch Einheizen durch die Hauswartin möglich. Das Brennholz liegt unterhalb der Veranda beim Hauseingang. Feuern Sie langsam ein, ansonsten besteht Gefahr eines Brandes oder Beschädigung des Ofens. Es reicht, wenn Sie einige Male pro Tag Holz nachlegen. Die Elektro-Heizungen in den Waschräumen/WCs sollten im Sommer immer abgestellt und im Winter nach Benutzung auf Minimum eingestellt sein.

Wasser/Elektrizität

Das Quellwasser kann als Trinkwasser benützt werden. Pro Boilertank können etwa 25 Personen (sparsam) duschen, danach 1–1.5h warten. An den Installationen darf nichts verändert werden.

Küche

Das Geschirr und die Küchenutensilien sind abgezählt. Nur so können wir gewährleisten, dass auch der nächste Gast eine vollständige Einrichtung vorfindet.

Entsorgung

Gebührenpflichtige Säcke liegen in der Küche auf. Die Abfallsäcke sowie Glas & Büchsen können in der Entsorgungsstelle bei der neuen Bergstation der Stoosbahn entsorgt werden. (mit dem Auto Oekohof Widmen, Muotathal Mo Nachmittag/Fr Vormittag oder nach Absprache mit Hauswartinnen). Abfälle verbrennen ist nicht erlaubt.

PET-Flaschen können im Keller im Sammel-Behälter entsorgt werden.

Kommunikation

Nehmen Sie Ihr Mobiltelefon mit, 4G wird unterstützt. Das WLAN reicht bis in den Aufenthaltsraum und kann im Sitzungszimmer oberhalb der Türe zurückgesetzt werden.

Spielwiese

Die Wiesen um das Haus werden bewirtschaftet. Für Spiele steht im Sommer tagsüber eine markierte Spielwiese zur Verfügung (Google Maps).

Markierte Spielwiese

Hausordnung

Die folgenden Regeln sind für die Sicherheit der Gäste und für den guten Erhalt des Hauses und des Umfelds von jedem und jeder in der Gruppe einzuhalten.

 

Die folgenden Regeln sind von jedem und jeder in der Gruppe einzuhalten.


 

Feuer

  • Rauchen ist strengstens verboten (Brandgefahr!)

  • Kerzen, Brennsprit, Brennpasten und ähnliches sind nicht erlaubt
    Ausnahme: Fondue ist mit Brennpaste in Alu-Schalen erlaubt

  • Den Kachelofen nur langsam einfeuern

  • Ein Feuerwehrschlauch ist hinter dem Haupteingang, Feuerlöscher sind auf jedem Stock zu finden

Fluchtbalkone

  • Fluchtbalkone dürfen nur im Notfall betreten werden (Absturzgefahr)

Schäden

  • Wir haben vor und im Haus vieles erneuert und repariert. Bitte tragen Sie Sorge zu diesen Arbeiten. Sie sind schön wie sie sind und müssen nicht durch Schnitzereien oder Kritzeleien zusätzlich verschönert werden.

  • Wenn Sie in den Schlafräumen keine dunklen, kohlensäurehaltigen Getränke konsumieren, können dort auch keine dunkle Flecken auf den Teppichen entstehen…

Sauberkeit

  • Bitte Haus nur mit Hausschuhen betreten

  • Möbel, Matratzen, Wolldecken bitte im Haus lassen

Rund ums Haus

  • Der Holzzaun hinter dem Haus darf nicht überstiegen werden (Absturzgefahr)

  • Keine Feuer in den Wiesen entfachen und Umwelt bitte sauber halten

  • Das Land rund ums Haus wird bewirtschaftet und gehört nicht zum Haus

Spielwiese

  • Von 1. Mai bis 30. November sowie bei Schnee kann die markierte Spielwiese benutzt werden (keine Spielgeräte/Abfälle liegen lassen, kein Feuer!).

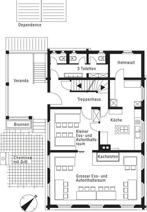
Grundrisse


 

Erdgeschoss

Untergeschoss

 

Obergeschoss

Dachgeschoss

Hausrückgabe

Verlassen Sie das Haus so, wie sie es vorgefunden haben. Unsere Hauswartinnen und die nächsten Gäste danken es Ihnen.

 

Nehmen Sie sich 15 bis 30 Minuten Zeit für die Abnahme mit der Hauswartin.

Staubsauger/Besen, Eimer/Lumpen sowie Reinigungsmittel sind hinten rechts im Reinigungsschrank im WC Erdgeschoss.


 

Schlafräume (Dach- und Obergeschoss)

  • Wolldecken ordentlich zusammengelegt

  • Kopfkissen neu bezogen mit Bezügen aus Reinigungsschrank, schmutzige Wäsche deponiert bei der Treppe

  • Böden/Matratzen (inkl. darunter) gesaugt

  • Fenster geschlossen, Fensterladen nach Absprache

Leiterzimmer «Ahörnli»

  • Sauber gereinigt

  • WC Sauber gereinigt

  • Boden gesaugt und nass aufgezogen

  • Elektro-Ofen im Winter auf Minimum und im Sommer ausgeschaltet

Aufenthaltsräume (Erdgeschoss)

  • Tische und Stühle ordentlich

  • Kachelofen gereinigt

  • Böden gesaugt und feucht gereinigt

  • Fenster und Fensterladen geschlossen

Küche

  • Inventar vorhanden und gereinigt

  • Flächen, Schränke gereinigt

  • Kühlschrank ausgeschaltet gereinigt und offen

  • Herd, Backöfen, Kochgeschirr gereinigt und versorgt

  • Asche aus Kachelofen entfernt

WC

  • Sauber gereinigt

  • Boden gesaugt und nass aufgezogen

  • Putzschrank alles vorhanden, Staubsauger geleert und gereinigt

  • Elektro-Ofen im Winter auf Minimum und im Sommer ausgeschaltet

  • Fenster geschlossen

Eingang

  • Gesaugt und nass aufgezogen

Untergeschoss

  • Duschen inkl. Spiegel und Waschtröge sauber und feucht gereinigt

  • Boden gesaugt

Umgebung

  • Veranda gewischt

  • Aussengrill sauber

  • Abfälle rund ums Haus entfernen

  • Kompost ordentlich

  • Alle Geräte ordentlich versorgt

Spielwiese

  • Sauber zurückgelassen

Bitte denken Sie daran dass Abfall selber mitgenommen und entsorgt werden muss.

Wegbeschreibung vom Flamberghuis zur Entsorgungsstelle

Notnummern

Auskunft/Notruf
1811

Polizei
117

Feuerwehr
118

Ambulanz / Sanität
144

Vergiftungen
145

REGA Helikopter
1414

Spital Schwyz
Waldeggstr. 10, Schwyz
041 818 41 11

Ärztlicher Notfalldienst
0840 31 31 31

Diverse Adressen

Taxi- und Transportzentrale
041 818 08 88
taxi.transporte@stoos.ch

Suter Food
041 811 14 15

Heinzer Metzgerei
Muotatal
041 830 12 30

Hofmatt-Apotheke Schwyz
041 811 56 16

Drogerie Imlig Schwyz
041 811 58 56

Migros Mythen-Center Ibach
041 819 50 50

Coop Seewenmarkt Seewen
041 819 82 40

Aktivitäten

Stoos-Muotatal Tourismus GmbH
041 818 08 80

Wetter/ Skipistenbericht Stoos
041 818 08 88
www.stoos.ch

Wir danken Ihnen für Ihren Besuch und freuen uns aufs nächste Mal im Flamberghuis!